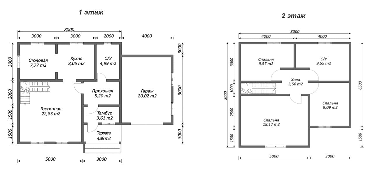
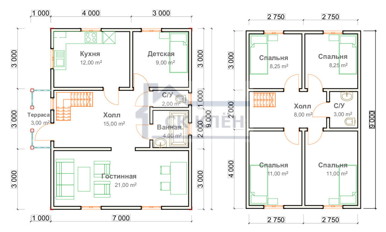
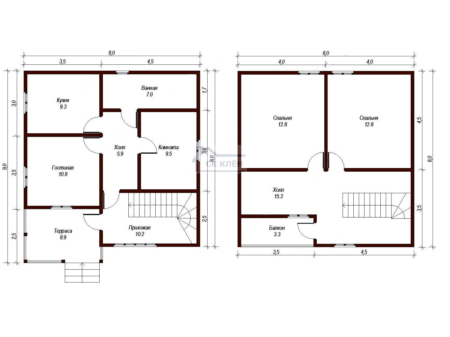
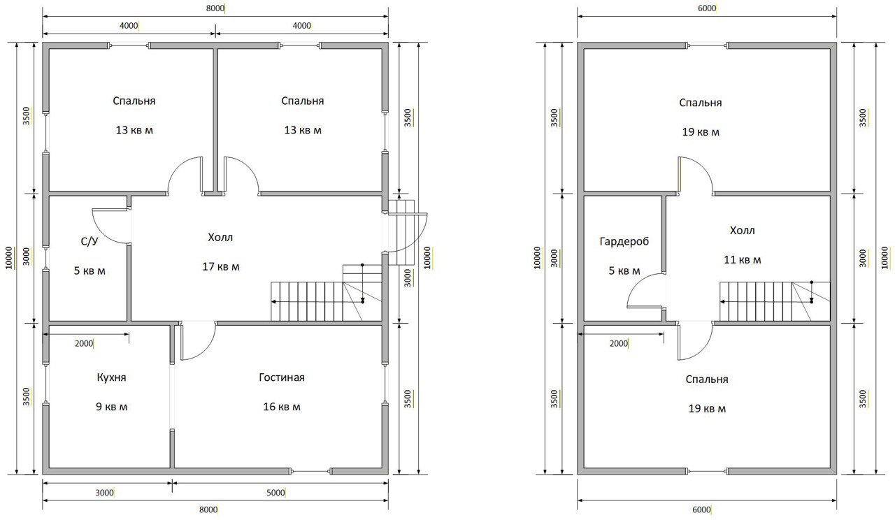
| Фундамент | В стоимость проекта не входит. Рассчитывается отдельно. |
| Высота | 2,50м –1эт., 2,30м – 2эт (допуски по высоте: +/-50 мм). |
| Основание | Двойное. Конструируется из бруса 150х100мм и из обрезного бруса 150х50мм. Обрабатывается антисептиком. |
| Черновой пол | Не строганная, обрезная доска 100х20мм. – камерной сушки. Обрабатывается антисептиком. |
| Чистовой пол | Шпунт 27мм камерной сушки. |
| Утепление пола и потолка | Минеральная вата рулонного типа Кнауф 100 мм, 150мм или 200мм. Ветровлагозащита и парогидроизоляция. |
| Силовой каркас | Каркас выполняется из бруса 100х40мм, 150х40мм или 200х40мм - камерной сушки, шагом стоек через 590мм. Ригеля из бруса 150х40мм - камерной сушки. С наружней стороны монтируется контр рейка из не строганной обрезной доски 50х20мм камерной сушки. Ветровлагозащита, каркас обшивается с наружной стороны имитаций бруса камерной сушки. С внутренней стороны монтируется парогидроизоляция. Каркас обшивается с внутренней стороны вагонкой камерной сушки. Утепление Роквул - 100мм, 150мм или 200мм в шахматном порядке. |
| Перегородки | Каркас выполняется из бруса 100х40мм - камерной сушки, с шагом 590мм. Ригеля и укосины из бруса 100мм - камерной сушки. С обеих сторон монтируется парогидрозащита. Каркас обшивается: вагонкой - камерной сушки. Утепление Роквул - 50 мм |
| Потолок | Монтируется парогидрозащита, обшивается вагонкой камерной сушки. |
| Фронтоны | Конструируются из доски 100мм, 150мм или 200мм – камерной сушки, С уличной стороны монтируется ветровлагозащита. Каркас обшивается с уличной стороны имитацией бруса камерной сушки. Устанавливаются вентиляционные решётки. |
| Стропильные лаги | Изготавливаются из доски 150х40мм. или 200х40мм. - камерной сушки, на ребро, с шагом 590мм |
| Стропила | Изготавливаются из доски 100х40мм., 150х40мм. или 200х40мм. - камерной сушки, с шагом 590мм |
| Обрешетка | Монтируется обрешётка из не строганной, обрезной доски 100х20мм. – камерной сушки с шагом не более 300мм. |
| Поднебесники | Обшиваются снаружи строганой доской. Ширина составляет не менее 300мм. |
| Высота конька | Высота конька От 1м. до 3,5м.(допуски по высоте +/- 100мм). Зависит от проекта. |
| Кровля | Ондулин — цвет на выбор. |
| Двери | Входная металлическая (Россия). Внутренние филенчатые. На двери монтируется наличник. |
| Окна | Деревянные стеклопакеты (однокамерные, двойное остекление), с фурнитурой. Отделка наличником. |
| Плинтус | Прибивается на стыки, стыки углов стен, потолка и пола. |
| Углы | Зашиваются вагонкой - камерной сушки. |
| Терраса | Устанавливаются вертикальные строганные опорные столбы 100х150мм. Монтируются перила из строганой доски 100х40мм, устанавливаются ограждения из строганой доски 100х20мм горизонтально. |
| Ступени | Монтируются ступени без ограждения. |
| Доставка | Доставка домов включена в стоимость проекта на расстояние до 450км от г.Пестово Новгородской области. Далее — 150р/км. |